產品型號有:5萬大卡生物質鍋爐,10萬大卡生物質鍋爐,15萬大卡生物質鍋爐,20萬大卡生物質鍋爐,30萬大卡生物質鍋爐,40萬大卡生物質鍋爐,60萬大卡生物質鍋爐,90萬大卡生物質鍋爐,120萬大卡生物質鍋爐,150萬大卡生物質鍋爐,180萬大卡生物質鍋爐,240萬大卡生物質鍋爐。
點擊上面的產品型號可查看生物質鍋爐的價格、參數、圖片,適用范圍。
1.什么是生物質熱水鍋爐?
生物質顆粒燃料由秸稈、稻草、稻殼、花生殼、玉米芯、油茶殼、棉籽殼等農林廢棄物以及“三剩物”經過加工產生的顆粒燃料,是節能環保的可再生能源。
生物質熱水鍋爐就是生產熱水的生物質鍋爐,是指利用生物質顆粒燃料燃燒釋放的熱能把水加熱到額定溫度的一種熱能設備。
生物質熱水鍋爐主要有采暖和洗浴兩種用途。生物質熱水鍋爐通過熱水循環泵循環保溫水箱的熱水,周而復始把水箱的熱水加熱,可以實現洗浴目的;熱水鍋爐通過熱水循環泵循環暖氣管道的熱水,通過散熱器(暖氣片)可以達到人們采暖的要求;生物質熱水鍋爐和熱水循環泵配合換熱器可以實現洗浴和采暖的雙重功能。
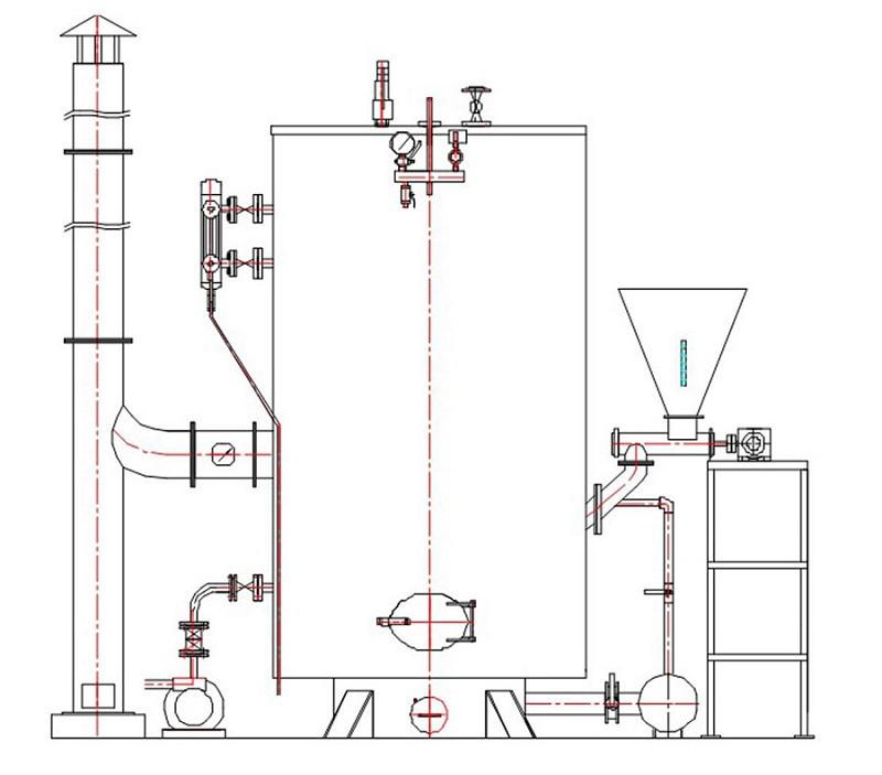
2.生物質熱水鍋爐以及鍋爐原理圖,配件圖片





3.生物質熱水鍋爐有什么特性優點?
(1)、環保:利用多項專利技術,多點配風,使燃料燃燒完全,徹底解決了冒黑煙的題目,并采用水膜除塵器,極大地降低了粉塵排放,可以達到國家一類地區排放標準。
(2)、節能經濟:
①、燃料采用多種先進的燃燒技術,燃燒充分,燃料利用率高,使得熱效率高達96%。
②、三爐膛四回程設計、結構新奇、獨特、受熱面積大,煙氣流程長,排煙溫度低。
③、鍋爐爐體采用鈦鎂鋁合金材料制作,不容易附著水垢。使得熱水鍋爐永不生銹,耐腐蝕、抗磨損,使鍋爐使用壽命長,維修保養簡單。
④、生物質熱水鍋爐采用自動點火、升火快、不存在封火消耗、節省燃料。
(3)、運行穩定,火力強,熱量足:燃料燃燒連續、運行穩定,不受添加燃料或捅火影響,保證熱量。
(4)、操縱方便、簡單、無需復雜的操縱程序,全自動控制運行。
(5)、燃料適應廣泛,經濟適用:該系列生物質燃料熱水鍋爐,可以燃燒成型生物質燃料,燃料來源廣泛,本錢低廉,綜合本錢比燃煤還低。既有燃油(氣)鍋爐環保好,又有燃煤鍋爐本錢低的特點。
(6)、適用范圍廣:廣泛適用于環保要求嚴格的大中城市的產業生產制造以及賓館、酒店、洗浴中心、事業單位、醫院、學校等行業。
4.生物質熱水鍋爐技術參數對比;
名稱 | 生物質鍋爐 | 空氣源設備 | 散煤鍋爐 | 燃氣鍋爐 | 燃油鍋爐 | 電鍋爐 |
熱值(kcal) | 4300 | 860 | 4500 | 8600 | 10200 | 860 |
鍋爐熱效率(%) | 96% | 300% | 50% | 80% | 85% | 100% |
實際熱值(kcal) | 4128 | 2580 | 2250 | 6880kcal | 8670 | 860 |
燃料單價(元) | 1元/kg | 1元/Kwh | 0.6元/Kg | 4元/m³ | 8.5元/Kg | 1元/Kwh |
加熱一頓水成本 | 9.7元 | 15.5元 | 10.6元 | 23.3元 | 39.2元 | 46.5元 |
1000平方采暖成本 | 24.2元 | 38.7元 | 26.6元 | 58.1元 | 98元 | 116元 |
鍋爐的優缺點 | 節能、環保、省錢 | 環保,冬天需要電輔加熱,成本接近于電鍋爐 | 省錢,不環保被國家政策禁用 | 環保,不省錢 | 環保,不省錢 | 環保,不省錢 |
加熱一噸水升溫1度需要熱值1000kcal,一噸水升溫40度需要總熱值4萬kcal(計算方式為總熱值/實際熱值*單價) | ||||||
每小時供暖1㎡面積需要熱量100kcal,1000㎡每小時供暖總熱值為10萬kcal(計算方式為總熱值/實際熱值*單價) | ||||||
點擊查看下列相關閱讀:
相關資訊
- 雙燃料生物質鍋爐在能源多樣化中的角色
- 生物質熱水鍋爐的熱水供應能力評估
- 生物質顆粒鍋爐在供暖領域的優勢
- 生物質燃料鍋爐型號升級對環保的深遠貢獻
- 小型生物質鍋爐在農村地區的推廣與應用
- 生物質采暖鍋爐與地暖系統的完美結合
- 生物質鍋爐在可再生能源領域的地位
- 生物質熱水鍋爐成為農村能源結構調整的推手
- 生物質采暖爐耐腐蝕性能分析
- 生物質采暖爐能效提升策略
- 生物質供暖爐節能宣傳與推廣
- 生物質鍋爐在醫院供暖應用分析
- 未來趨勢預測:生物質蒸汽鍋爐的無限可能
- 公共建筑節能:生物質采暖鍋爐效果
- 生物質供暖鍋爐多功能探索
- 智能化改造:生物質蒸汽鍋爐的升級之路
- 生物質取暖爐能效與成本對比
- 生物質供暖鍋爐:環保標準與安全指南
- 燃料種類與選擇:生物質熱水爐的燃燒優化
- 技術創新前沿:生物質熱水爐的未來發展趨勢
| * 聯系人: | 請填寫您的真實姓名 |
| * 手機號碼: | 請填寫您的聯系電話 |
| 電子郵件: | |
| * 采購意向描述: | |
| 請填寫采購的產品數量和產品描述,方便我們進行統一備貨。 | |
| 驗證碼: | 看不清?! |
聯系自然人
銷售咨詢熱線:0735-2521991
售后專線:0735-2521991
公司郵箱:862144032@qq.com
公司地址:湖南省郴州市蘇仙區白露塘 林邑路富士產業園 郴州自然人新能源高科技有限公司








自然人網站二維碼